Well it's been a long couple of months, but we moved into the 95% complete house last weekend and I finally unpacked and mostly assembled the jointer and dust collector last night. The shop area is full of house construction related junk still, and has no storage or work benches but that can all be sorted in the future.
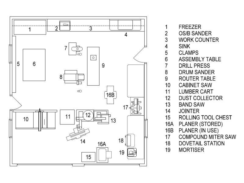
The room is small, only 17x16, but everything is or will be mobile so I can spread out into the garage if needed. I have four 220v 20A circuits run into the area, and one 220V 30A in the center of the room (in floor) case I ever get a giant table saw (SawStop woo! Right now I have a Ridgid contractor that is not on site, my BT3k blew up ripping 2x4's).
Anyway, lots of work to do still to make it a usable space and a few more tools to get/move here from my 2 other temporary work shops. (router stuff, hand tools, clamps, etc.)
Of course it doesn’t count unless there are pictures.. So here is all my new green, and a little orange)

House and shop pictures can also be seen here.
http://picasaweb.google.com/dsellinger
And any tips on arrangement of the space, tool position and dust collection piping are greatly appreciated.
The room is small, only 17x16, but everything is or will be mobile so I can spread out into the garage if needed. I have four 220v 20A circuits run into the area, and one 220V 30A in the center of the room (in floor) case I ever get a giant table saw (SawStop woo! Right now I have a Ridgid contractor that is not on site, my BT3k blew up ripping 2x4's).
Anyway, lots of work to do still to make it a usable space and a few more tools to get/move here from my 2 other temporary work shops. (router stuff, hand tools, clamps, etc.)
Of course it doesn’t count unless there are pictures.. So here is all my new green, and a little orange)
House and shop pictures can also be seen here.
http://picasaweb.google.com/dsellinger
And any tips on arrangement of the space, tool position and dust collection piping are greatly appreciated.


**one and only purchaser of a BT3C official thong** 

) to avoid the pitfalls I currently deal with.
Comment